Eladó lakás Budapest III. ker 63 990 000 Ft

Leírás

Örökpanoráma ~ jó adottságok ~ azonnal birtokba vehető otthon Békásmegyeren!

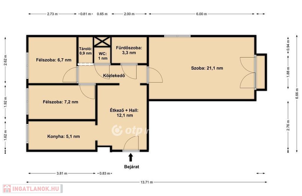
Budapest, III. kerület, Békásmegyer hegy felőli, csendes oldalán kínálok eladásra egy 57 négyzetméteres, 1+2 félszobás, étkezős lakást nyugodt lépcsőházban.
A francia erkélyes ingatlan különlegessége, hogy három égtáj felé tájolt, körbenapozott lakás, így egész nap világos és kellemes hangulatú. Az erkély déli fekvésű, az ablakok pedig északra és keletre néznek.

Az ingatlan elosztása kifejezetten praktikus, kisgyermekes családok számára is kényelmes otthont nyújt. Az 5. emeletről gyönyörű, örökpanorámás kilátás nyílik a Kálvária dombra, ami igazán különleges hangulatot ad a lakásnak.

A környék parkosított, a ház előtt sok zöld terület és futópálya található, így a természet közelsége mindennap élvezhető.
Szupermarketek, szolgáltatások és a HÉV-megálló pár perc sétával elérhetők, ezért a közlekedés is kiváló.

A lakás tehermentes, jelenleg üres, így azonnal birtokba vehető, felújítás után pedig egy igazán szerethető otthonná alakítható.

Az OTP Ingatlanpont teljes körű ügyintézéssel támogatja Önt az ingatlanvásárlás minden lépésében. Otthon Start Hitelprogram, kedvezményes hitelek, CSOK+, falusi CSOK, lakástakarék, valamint megbízható ügyvédi háttér áll rendelkezésre.

A felújításban is szívesen segítek! Több éve együtt dolgozom megbízható szakemberekkel, akik minden munkálatot precízen elvégeznek, a kisebb javításoktól a teljes átalakításig.

Várom megtisztelő hívását - akár hétvégén is!

Lakás részletei

Ár: 63 990 000 Ft
Méret: 57 négyzetméter
Azonosító: 11601739
Irodai azonosító: M322863-5158007
Cím: Budapest 3. ker.i eladó 57 nm-es lakás
Emelet: 5. emelet
Építőanyag: Panel
Fűtés jellege: Távfűtés
Ingatlan állapota: Felújítandó
Komfort fokozat: Összkomfort
Építési év: 21-50 éves
Kilátás: panorámás
Egész szobák: 1
Fél szobák: 2

Egyéb jellemzők

  • Erkély
  • Lift

Térkép