Eladó családi ház Budapest XXII. ker 315 130 000 Ft

Leírás

ENERGIATAKARÉKOS, LUXUS ikerház, eladó Budafokon!
Egy igazán energiatudatos és fenntartható épületgépészeti megoldásokkal és okosotthon vezérléssel ellátott ikerház épül az Ön egyedi igényeihez alkalmazkodva!
Kiváló minőségű referenciákkal rendelkező, megbízható kivitelező építi az Ön otthonát.
Hívjon és foglaljon időpontot a Projekt részletes bemutatására!

ÉPÜLET LEÍRÁSA:
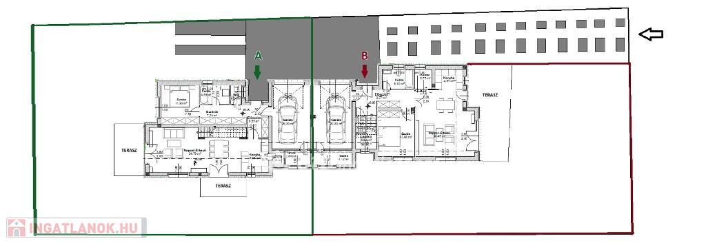
A lakás hasznos alapterület: 160,42 m2
Kétszintes épület.
Tájolás: NY.
HELYISÉGEK:
Amerikai konyhás nappali 42 m2, 17 m2 terasz kapcsolattal.
4 tágas hálószoba.
Konyhából kamra nyílik.
3 fürdőszoba.
2 gardrób helyiség.
Földszinten két terasz.
Emeleten két fedett terasz.
Garázs elektromos autótöltővel felszerelve, tároló kapcsolattal.
Nyitott kocsibeálló

TELEK MÉRETE: 1215 m2

KERT:
Elszeparál kertrész mérete kb. 700 m2.
Automata robot fűnyíró rendszer kiépítése,
automata öntözőrendszer, esővízgyűjtővel,
és gyepesítés az árban.

MŰSZAKI ADATOK:
Fűtés/hűtés: A lakásban, mennyezet fűtés-hűtési rendszer kerül kialakításra helyiségenkénti szabályozással.
A fürdőszobák, elektromos-thermosztátos, törölközőszárítós radiátorral szereltek.
Hőszivattyús berendezés 11 kW-os a gépházban, padlón álló kombi hidrobox, melyben 180 l-es HMV tartály is található.
Szellőztetés: Hővisszanyerős szellőztető rendszerrel,
Napelem: Havi szaldó elszámolású napelem rendszer 12 kW napelem + 20 kWh akkupakk + autótöltő.
Árnyékolás: Beépített redőnytokok. Alumínium, távirányítós, motoros redőnyök antracit szürke színben, szúnyoghálóval szerelve.
BWT vízlágyító rendszer kiépítése a vízkő elleni védelemért.
Kerítés kapu: kétszárnyú automata kapu.
Garázskapu: Kling 200 ipari szekcionált, CE minősített automata garázskapu.
Kaputelefon: Oda-vissza beszélő, videós rendszerű, a külső kapunál videós beengedő rendszerrel.

OKOSOTTHON:
Árnyékolástechnika okosotthon vezérléssel.
Riasztórendszer mobil okos applikációval.
Mennyezet fűtés-hűtési rendszer, helyiségenkénti szabályozással és NGBS vezérléssel.

Ne feledje, az OTP Ingatlanpont kedvezményes pénzügyi konstrukciókkal áll ügyfelei rendelkezésére! VIP-szolgáltatást nyújtunk az OTP-hiteltermékek ügyintézésében.
Jogi és pénzügyi segítséget nyújtanak szakértőink, hogy az adásvétel folyamata gördülékeny legyen.
Részletes információkért hívjon bizalommal!

Családi ház részletei

Ár: 315 130 000 Ft
Méret: 227 négyzetméter
Azonosító: 11405437
Irodai azonosító: M271076-4689657
Telek: 1215 négyzetméter
Ingatlan állapota: Átlagos
Jelleg: ikerház
Építőanyag: Tégla
Fűtés jellege: Geotermikus
Fűtés módja: Villany
Komfort fokozat: Dupla komfort
Kor: Új építésű
Szintek száma: 1 szint
Egész szobák: 5

Egyéb jellemzők

  • Garázs

Térkép