Eladó családi ház Budapest VIII. ker 1 500 000 000 Ft

Leírás

!!! BEFEKTETŐK, INGATLAN FEJLESZTŐK FIGYELEM !!! EGYEDI, REMEK, ÉRTÉKÁLLÓ BEFEKTETÉS !!! 8. KERÜLET FREKVENTÁLT RÉSZÉN, A JÓZSEF KÖRÚT VONZÁSKÖRZETÉBEN ELADÓ MEGLÉVŐ, SZERKEZETKÉSZ ÉPÜLET , AKÁR 6 LAKÁSOS TÁRSASHÁZZÁ ALAKÍTHATÓ , EREDETILEG HOTELNEK SZÁNT INGATLAN!

--- AZ ÁR IRÁNYÁR! ! NÉZZE MEG, TEGYEN AJÁNLATOT! ---

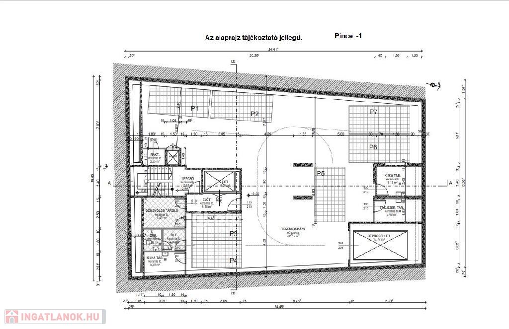
Az épület zártsorúan helyezkedik el a telken, a pinceszinten és a földszinten teljesen beépült az építési terület, az emeleti szinteken két kis belső udvar lett kialakítva. A tervezett épület 3 pinceszintes + földszint + 7 emeletes, magastetős kialakítású. Az épület építménymagassága 24,414 m. A 3 db pinceszint megközelítését gépkocsival, autólifttel tervezték, a födémáttöréseit kihagyták és vasbeton körítő falát megépítették. A -3 pinceszinten a teremgarázs 7 db gépkocsi tárolására alkalmas.

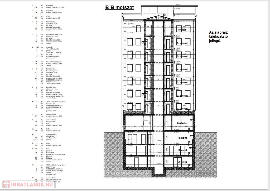
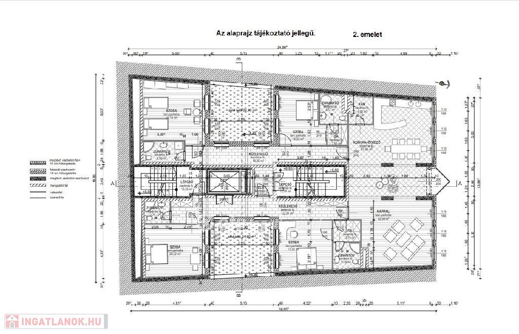
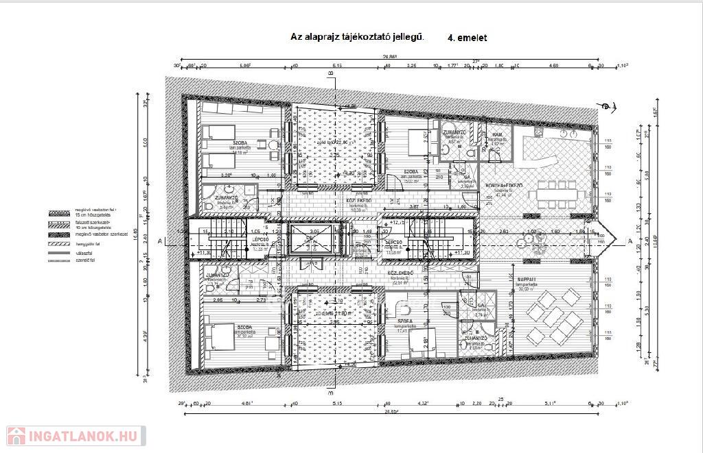
A földszintről indul a második lépcsőház az emeleti szintek felé. A földszint monolit vasbeton tartószerkezetű. Az általános emeleti szinteken (1-6) az ugyancsak monolit vasbeton tartószerkezet készen van. Az emeleti szintek a két lépcsőházon és a liften keresztül közelíthetők meg. A 6 emeletnél az utca felé már tető van kialakítva. A 7. emelet az utca felé tetőtéri szint, a belső udvarok felé teljes szint.

A 7. emelet felett három gépészeti felépítmény épült meg. A közművek már be vannak vezetve, új tulajdonosa eldöntheti, hogy mit szeretne kialakítani belőle, akár teljesértékű lakásokat egy - egy szinten vagy külön szobákat vizesblokkal rövid távú kiadásra, esetleg hotelnek / szállónak, gyógyászati központnak, cég központnak, iroda háznak is tökéletes választás.

- Telek területe: 379,00 m2
- Övezeti besorolás: VK-VIII-1
- Épület össz. nettó alapterülete 3158,89 m2

Az épület rugalmasan megtekinthető reggel 9 és este 6 között a hét bármely napján.

--- AZ ÁR IRÁNYÁR! ! NÉZZE MEG, TEGYEN AJÁNLATOT! ---

Köszönöm megtisztelő figyelmét. Amennyiben jelenlegi ingatlana értékesítésében is segítségére lehetek, illetve az OTP teljes kínálatával kapcsolatban kérem forduljon hozzám bizalommal. Ha felkeltettem érdeklődését, ne habozzon keresni a hét bármely napján reggel 9 és este 9 között. Ügyfeleinknek minden szolgáltatásunk (valóban) díjmentes, akár ingatlanokkal kapcsolatban, akár hitelügyintézés, CSOK, Babaváró vagy bármilyen pénzügyi tanácsadásban örömmel állunk rendelkezésére.

Családi ház részletei

Ár: 1 500 000 000 Ft
Méret: 3 158 négyzetméter
Azonosító: 11365818
Irodai azonosító: M232759-4289905
Cím: Budapest 8. ker.i eladó 3158 nm-es ház
Telek: 379 négyzetméter
Ingatlan állapota: Átlagos
Jelleg: sorház
Építőanyag: Tégla
Fűtés jellege: Egyéb
Komfort fokozat: Összkomfort
Kor: 21-50 éves
Szintek száma: 4 szintnél több
Egész szobák: 42

Egyéb jellemzők

  • Garázs

Térkép